… shame about the council’s cost-cutting hit men. Gus Alexander takes a stroll around Whitechapel’s Idea Store, the David Adjaye-designed library-cum-IT-superstore, and laments what might have been
Have you ever worried that teenage children aren’t being encouraged to spend enough time in front of computer screens? If so, you may want to reassure yourself by taking a look inside the Idea Store on Whitechapel High Street where the London Borough of Tower Hamlets has commissioned David Adjaye Architects to reinvent the public library for them.
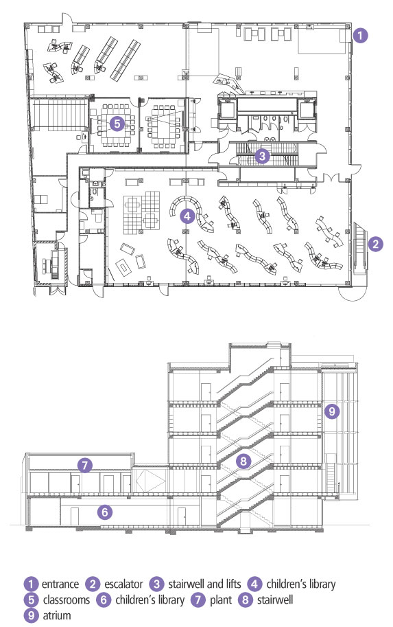
And it’s a pretty bold effort. The store is a brash, shiny five-storey building faced in coloured glass panels that stands in east London’s principal high street. Unfortunately, when you encounter this glass miracle from the pavement, you do not experience a witty exercise in hip early 21st-century design; what you see is a load of clear sealed plywood bookcases half full of paperbacks, as though Age Concern had temporarily taken up space in a disused car showroom. It is not clear whether this is the fault of the designer or the management. This is a busy but not especially prosperous high street, and you really need more to distinguish inside from outside than a strip of aluminium grill work on the perimeter trench radiators. It is also bizarre that this principal elevation doesn’t have the principal entrance. It looks as though its main function is for the children inside to watch pedestrians gazing about and wondering what the huge great escalator is for.

Directly off the pavement is a stainless steel escalator that whisks the public though a full-height atrium up to the first and second floors. From the atrium the structural system is clearly visible. An external envelope consisting of panels of glass backed by Kerto timber fins is hung from the ends of four huge steel I-beams that oversail the face of the “library” proper. The steel beams sit on a flat roof and above them squat three huge steel boxes that contain the mechanical plant.
The coloured glass panel idea goes around the front elevation and part of two side elevations, one of which – the pedestrian route between the high street and Sainsbury’s – contains the main entrance, which at first sight seems rather incongruous. The remaining elevation to the supermarket car park is clad in other types of panel (glass, insulation-backed self-coloured aluminium and so on) and comes straight out of the ground. All uncompromisingly uncompromising.
One’s first impression is that the architect has handled his aesthetic confidently but it’s pretty much “sod you” to the ideal of libraries in general, and to Whitechapel High Street in particular. The building is a storey-and-a-half higher than its neighbours, but of course the council can grant itself permission for anything it wants. I am not sure whether libraries are supposed to be as in your face as this one is. But in your face is definitely what you get. The Idea Store is a public building, which contains an old version of the public library – that is, lots of Sven Hassel novels in large type – and some communal educational facilities – dance studios, practice rooms – but it is mainly the home of hundreds of computer terminals.
Unlike old-style libraries, which are supposed to promote studiousness and contemplation, this one is really funky. And noisy. You can tell it’s funky as it has studded magenta rubber sheeting on its suspended floors. It also has cranked fluorescent ceiling lighting as if to say “watch out, Zaha, we’re not far behind”. It has illuminated handrails à la Tate Modern and stainless steel skirtings. What it doesn’t have is any sense of gravitas. Unlike the library next to the Whitechapel Art Gallery, which is a rather delicious Edwardian arts and crafts building whose 100-year-old parquet is just about ready for its second sanding, and which just oozes a sense of egalitarian cultural provision.
The inside of the store is a series of floors connected by stairs and lifts with a glass-faced void the whole of the way up the main elevation, and three-quarters of the way up the side elevation. When I saw the secondary void I imagined that it was to accommodate the assisted “conservatory” and mass concrete-floor-heat-sink-ventilation system. However, I subsequently discovered that this void was originally designed to enclose a continuation of the main stair that was to have wrapped around the side over the main entrance and provide access to the upper two floors, thereby making a continuation of the grand gesture set up by the escalator at the front.
Suddenly the whole design began to make a good deal more sense, particularly as far as the principal entrance was concerned, and the real spirit of the architect’s intention was revealed. That is to say, it became clear that the whole spirit of the building had been undermined. After the contract was well under way, the client, in its wisdom, decided that the architect should redesign his scheme so as to get rid of half the principal stair. This makes perfect sense. I’ve always thought the best way to save money on a publicly funded scheme is to get rid of the principal circulation route. I mean, why waste money on that when you can funnel everyone down the escape stair? Just because it means the stair and the lifts are no longer in the same place and because it leaves two main floors of the building with a meaningless void, that is no reason not to make this enormous strategic change if there is a chance – no guarantee, obviously – that you can save a few bob. I mean it’s only taken seven years to get the project this far. And it’s only likely to be used by a quarter of a million people for the next 60 years. So why not? Hey! Who said value-engineering can’t be done most effectively once work has started?
Behind each joint supporting the coloured glass panels is a timber fin about 300 mm deep and 60 mm thick. This presumably provides some protection against solar gain and also some modelling on what would otherwise be an entirely flat elevation. Unfortunately, when viewed from the outside these do not look like delicious pieces of organic material contrasting with the flat shiny finish of the glass. What they look like is large slabs of clear-sealed MDF sheeting. Also, more or less every glass panel is stained iridescent colours. It is not a question of having part of a glass facade enlivened with coloured panels. The whole facade has coloured panel in it. This is rather wearing, particularly from the inside. But of course the whole glass screen aesthetic would have made more sense if the staircase had continued and connected all the floors.

The store is the second of a series of seven planned for the borough and, in this age of branding, I suppose the councillors daren’t take the risk that some of their tax payers may not recognise the Idea Store when it arrives. There’s no question that it’s a confident piece of design work. The structure and construction are clearly expressed and the bolt fixings in the principal members – those huge timber fins – provide a lively decorative element and give the atrium a considerable sense of scale. The trouble is it all feels too cheap, which it might not have done if the architect’s circulation pattern hadn’t been so drastically changed. Even as it is, the building envelope would have been a wonderful backdrop to racks of fabulous clothes, or of brightly coloured CDs, or even of a well-fitted-out bookshop. Adjaye has designed some interesting curved plywood bookcases that cleverly interlock to make snake shapes, which are jolly. But these really belong in a low-key Montessori school, not a high-profile public library. Okay, it’s not a library, but it is supposed to provide citizens with some sort of intellectual nourishment. In the Idea Store, most of the inside looks like a branch of PC World or Dixons, except with a pink floor. It turns out that even the architect’s proposal to have different colours on each floor was vetoed by the client. I suppose that means not having to keep four colours of spare tile. Think of the savings over the life of the building!
The architect is a famous graduate of the Royal College of Art where many of his colleagues are now the stars of Brit Art and doing exciting things with animals in formaldehyde. All provocative and exciting no doubt, but not really anything to do with firmness, commodity and delight. There is no question that the Idea Store is a great idea about a building. When I first visited it I was not sure that it is actually a good building itself. But the more I found out about the shortfall between the architect’s intentions and what the client’s hit men has deemed appropriate, the more I think this development has more to say about the pitifully ill-considered nature of contemporary public procurement than about the shortcomings in the performance of the design team or its builders.
But it seems to be very popular for the time being, and if novelty building is what is required to get people online, perhaps it should be considered a success. At least there is now somewhere in Whitechapel you can get a decent cup of coffee.
Project team
Client London Borough of Tower Hamlets
Architect David Adjaye Architects
Main contractor William Verry
M&E and structural engineer Arup services
Engineer ECG Group
Concrete frame contractor Modebest
Glazing envelope Konhaeusner
Escalator installation Kone
The Idea Store key points

- David Adjaye-designed Idea Store, the second of seven library, IT and adult learning centres for the London Borough of Tower Hamlets
- A glass-clad five-storey structure with an extra facade of glass over the Whitechapel Road creating an atrium. Glass panels stained iridescent colours
- Staircase design revised for budgetary reasons
Downloads
Ground floor plan and cross section
Other, Size 0 kb
















No comments yet