Forget the Beatles and the Fourth Grace – Liverpool has a new icon in the shape of the colourful media centre Toxteth TV
"When I think back to the original design brief, I think we wanted a big red box, something visible from a long way away,” recalls Toxteth TV board director Nick Stanley. Well it may not be totally red, but Toxteth TV’s new multicoloured HQ in Liverpool is certainly big, boxy and very, very striking. So much so, it has already scooped both the Best Public Building and Building of the Year categories in the BDA’s 2004 Brick Awards.
Apart from its distinctive technicolor contribution to Windsor Street, Toxteth, and holding its own against the looming backdrop of Liverpool’s Anglican Cathedral, the building is also noteworthy in other respects. It was built for a total cost of only £1m. That includes design fees and fit out and works out at just £66/ft2. Pretty good going in this day and age, even for a low-budget affair.
Completed in August 2003, Toxteth TV has resulted from a DfES project to fund a network of media centres in deprived areas that would give excluded young people interested in pursuing a media career hands-on training in TV, film and video production. In addition, the project is also home to a number of small film, production and creative companies. Partners in the project include Liverpool Community College, the city council and Exterminating Angel Productions.
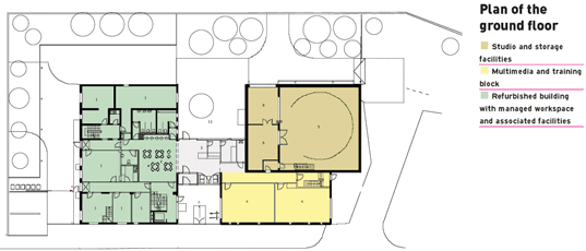
Architect Union North has made sustainability and budgetary limitations its guiding principles throughout. Wherever possible, it has specified raw, low cost, readily available and reclaimed materials in a creative manner. The two-storey building houses classrooms, a fully equipped TV studio, edit suites, green room, offices, a refectory and managed workspaces, all spread over three totally distinct rectangular volumes. The first is faced in wood, the other in brick and a third in blockwork.
The first – the post-war pub that had lain derelict for years – now houses managed workspaces, which provide revenue to fund the activities that go on in the other areas of the building. The other two volumes are both new and comprise a brick-faced training block housing teaching spaces and multimedia rooms, and a concrete block that boasts a double-height recording studio. Connecting all three volumes is a two-storey link that houses a double height entrance and reception.
The most visually striking of the three volumes is the brick clad training block. Here, architect Union North fulfilled the brief for a high secure wall by using more than 15 different standard brick types, laid to create a vibrant stripy appearance. The idea was to reflect the wide variety of brickwork found in the vicinity. Interestingly enough, such an imaginative solution was achieved at almost the same cost as would have been incurred by using a single-coloured brick.
As if the dynamic arrangement of stripes and banded brickwork were not enough, the architect has projected alternate brick courses by 10 mm to articulate the window zones on both ground and first floors. To have extended this effect throughout would have stretched the building’s limited budget. Furthermore, in keeping with the architect’s aim of a dynamic effect that also had an interesting texture, bricks have in places been laid with the cavity side facing outwards. This imparts an interesting rhythm of vertical ribbing that is becoming increasingly common on contemporary schemes and can also be used as an internal feature.
Some ground-floor windows are simple one brick wide slits designed to shield IT users from glare and prying eyes and also to harness the concentration of trainees. Similar proportions are kept for windows on the refurbished portion of the building, which together give the building the look of a fortified citadel.
With such a complex arrangement of different colour bricks and projections, it is not surprising that the bricklayers were initially sceptical of what was required of them. Yet misgivings soon dissolved into enthusiasm when the prospect of working on such an interesting job finally hit home.
Bricks were delivered according to type so all that was required was to gather the appropriate colour when it was needed. This was facilitated by a detailed architect’s drawing that numbered and located every single brick. If a colour was at any time in short supply, another would be substituted after consultations with the architect. Standard cavity wall construction was used comprising a partially insulated 100 mm cavity and 140 mm internal block leaf. Budgetary restraints meant there are no specials on the job.
The construction of the other two volumes is in complete contrast to the brick volume. Cavity blockwork forms the walls of the grey studio block, which rises to more than 6 m high and, when viewed from Windsor Street, forms a contrasting neutral background to the exuberant brickwork. To satisfy acoustic requirements, the studio’s internal block leaf has been laid flat side down in order to create a 215 mm thick wall and thereby achieve the extra mass in a cost effective way.
Mindful of the banality that sometimes comes with large expanses of grey blockwork, the architects have introduced transversely laid header blocks projecting from the wall surface and arranged in a random pattern. It is envisaged that planting will eventually cover the external surface.
The refurbished block has its own intriguing idiosyncrasies. The original idea was to use railway sleepers to clad the dark, vandalised, post-war brickwork but it proved difficult to find a company willing to risk its cutting saws on the nails and other metal fragments usually found embedded in sleepers. Instead, a timber rainscreen has been created using reclaimed floor joists that have been cut down to 40 mm thickness and screw-fixed to vertical battens attached to the brickwork. In what can only be viewed as ironic, the horizontally laid, wire-brushed planks bear a striking similarity to board marked concrete when viewed from afar.
To articulate the window zone, the horizontal planking gives way to projecting vertical ribs that provide a complete change in texture. They also give a two-tone effect depending on the angle of view: on one side they are wire-brushed whereas on the other they are painted in subtle colours. The result of all this is to add extra colour and texture to the triptych of forms that are presented to the neighbourhood.
So how has the building fared with the locals? By all accounts very well, thinks Toxteth TV chairman Colin Zee, who credits the project team’s persistence in consulting the local community throughout the design process as critical in ensuring the building got a favourable reception. This is also facilitated by Toxteth TV’s open-door policy, which encourages community use of the centre, whether for free evening courses, special projects for schools or simply as a meetings venue. And of course, local businesses can also make use of the low-cost managed workspaces.
Dale Carnegie once wrote that when life deals you a lemon, you should make lemonade. In a similar vein of turning drawbacks into benefits, architect Union North has shown how sustainability requirements and budgetary limitations can be successfully exploited as guiding principles to produce interesting architecture that is of real benefit to the community. It also shows that, in the words of Nick Stanley, “building to a high environmental standard doesn’t have to be more expensive. The key is how much thought and care you put into the design and specification.”
For further details call the BDA on 01344-885651
Project team
Client Toxteth TV
Architect Union North
QS Simon Fenton Partnership
Structural engineer Buro Happold
Brickwork Nobles Construction
Building services Fulcrum Consulting/Steven Hunt & Associates
Acoustic engineer Hepworth Acoustics
Downloads
Plan of the ground floor
Other, Size 0 kb
Brick Bulletin January 2005
- 1
- 2
- 3
- 4
- 5
- 6
- 7
- 8
- 9
- 10
- 11
Currently
reading
Toxteth’s technicolour dreamboat





























No comments yet