First, there is the senior partner of Richard Rogers Partnership, architect of all those hi-tec, space-age buildings from the Centre Pompidou to the Millennium Dome that are anathema to Prince Charles. Then there is Lord Rogers of Riverside, chairman of the government's urban taskforce promoting a mixed-use, community-driven, eco-friendly policy of urban renaissance that is music to the ears of the prince.
Leaving aside Richard Rogers Partnership's 1980s development of flats, a restaurant and its own offices in London, you have to go to Berlin to find architect Rogers and urban strategist Rogers working hand in hand.
What the two have come up with is a row of three buildings. All the hallmarks of the Richard Rogers Partnership's flamboyant hi-tec style are much in evidence: there are the clear-glazed cylindrical stair towers, the hi-tec modular curtain walling and the in-your-face primary colours – in this case, lemon-yellow external blinds.
However, Rogers' Berlin buildings are part of a much larger whole. They form just three of the two dozen or so new buildings in Potsdamer Platz, Berlin's born-again mixed-use commercial hub, which, along with the new neighbouring government centre, makes it Europe's most ambitious urban regeneration project. Potsdamer Platz goes well beyond Broadgate in the City of London in combining housing, cinemas, a theatre and public park in a high-density mix with the more predictable offices, shops, restaurants and a major transport hub. Rogers' three buildings alone combine offices, housing, retail and restaurants.
But that is not all that is on offer at Rogers' Berlin buildings. They are at the leading edge of low-energy building design, the result of one of the most intensive and sophisticated computer-aided research projects ever carried out. Both offices and housing are entirely naturally ventilated without mechanical back-up or, in theory at least, artificial cooling, even though the high-density blocks are wrapped tightly around courtyards and enclosed atria.
All three aspects of urban, environmental and architectural design coalesce superbly in Rogers' three buildings. The flashy, highly individual architecture is actually subservient to an overall masterplan. And the seemingly whimsical sculptural forms and the permutations of cladding panels have been largely dictated by low-energy considerations.
The Rogers blocks take their place in a beauty parade of buildings designed by international superstars, including Renzo Piano of Italy, Arata Isozaki of Japan, Rafael Moneo of Spain and Murphy/Jahn of Chicago. But it is not chauvinist to hail Rogers' buildings as the most eye-catching in the whole development, and also the most impressive in the way they meet the urban challenges of the site and exploit sophisticated low-energy technology.
The project started after Germany's reunification of 1990, when the mixed-use, high-density urban regeneration strategy for the whole of Potsdamer Platz was laid down. This was not Richard Rogers Partnership's doing, but was dictated by Berlin city planners, developer DaimlerChrysler (formerly Daimler-Benz) and two masterplans by Hilmer & Sattler and Rogers' former partner, Piano.
Redesigning the doughnut
The final masterplan presented to Rogers in 1994 contained several severe architectural constraints. The buildings that the practice was asked to design had to correspond to traditional Berlin city-centre blocks. These took the format of square "doughnuts", 50 m wide and nine storeys high, enclosing a central courtyard and with the top storey set back behind the eaves. The three blocks were to be tightly bound on three sides by similar-sized buildings but face out to a new public park on the fourth side. In addition to all that, the two bottom floors of the blocks would be occupied by retail units that would open into a two-storey shopping mall at the rear. This meant that the entrance floors for the offices and housing would be two and three floors above pavement level respectively. Finally, Piano's preferred cladding material was precision-engineered tiles of terracotta.
The low-energy design led to the south-east corner of the doughnuts being cut away to allow fresh air, daylight and sunlight to penetrate the courtyards and interiors overlooking them. The housing block was further cut away by chamfering both the bulky rectangular ends of the split doughnut and the roofline, to shoehorn in more sunlight and daylight in the winter months. In addition, the office facades are composed of a complex hi-tec kit of parts, with different permutations of panels selected to match precisely how much daylight, sunshine, shadow and wind each subsection of facade receives.
As for the architectural design, it has transformed these urban and environmental constraints into architectural features to be celebrated, and has orchestrated them into a coherent whole.
For a start, the open corners of the doughnuts give all the offices and flats facing them direct views of the public park. And these atria and courtyards are luxuriantly landscaped to form secluded communal gardens protected by the projecting arms of the upper floors from the commercial bustle below yet visually linked to the park.
As it was particularly important to have recognisable public entrances for the two office blocks, access from the pavement to the atria receptions has been highlighted in the form of grand external staircases and glazed cylindrical lift towers.
In Rogers' hands, the unusual building forms, with their open-sided doughnut configurations set on top of two-storey podia, have been played up to their full sculptural potential. The blocks are further articulated by the glazed cylindrical stair and lift towers and by upper floors that cantilever out dramatically at the front over the lower retail floors.
A facade of sophistication
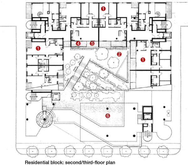
At the same time, the residential block and the two office blocks, although obviously related in their overall dimensions and form, have been allowed to express their different architectural characters. The office blocks are predominantly rectilinear, with floors of offices stepping down towards the main entrance and modular panellised facades. The traditional eighth-floor eaves line has been exaggerated as a great upward-curving canopy that also shades the office floors below. The residential block, by contrast, is dominated by sharp, raking wedge-shaped forms.
The facade treatment also varies notably between office and residential blocks although sharing the terracotta cladding. The facades to the offices are composed of prefabricated panels in a standard 2.7 m grid but with varying patterns of translucent glass, opaque glass, monochrome terracotta tiles and yellow projecting blinds. In contrast, the external facades of the residential block are clad in the domestic brick tradition of large expanses of mottled terracotta tiles punched through by rectangular windows.
Given the flamboyance of the building exteriors, the interiors are relatively uneventful, although all share the spectacles of the half-enclosed landscaped courtyards. As required by the client, the offices are conventionally divided into cellular rooms with central corridors. All the flats have double aspects, with views out to the street on one side and attractive balconies and conservatories overlooking the courtyard on the other.
The three Rogers buildings at Potsdamer Platz show that mixed-use sustainable urban regeneration is compatible with exciting architectural design. And we can now take it that urban strategist Lord Rogers and architect Richard Rogers are one and the same person.
Environmental design the Rogers way
Richard Rogers Partnership's three buildings at Potsdamer Platz are among the most intensively researched and designed low-energy office and residential buildings ever. The research involved five state-of-the-art computer modelling systems, as well as an artificial sky and a heliodon – a turntable that simulates daily paths taken by the sun across the sky.
The research was made possible only by joint funding from the client, DaimlerChrysler, and the European Commission. It was carried out by, among others, Richard Rogers Partnership, the British environmental consultant Roger Preston & Partners, and the Martin Centre for Architectural Research and Urban Studies at Cambridge University.
The report states that the design team "adopted a primarily passive environmental control approach which responded to climatic conditions". The aim was to make optimum use of natural ventilation, daylighting and solar gain, as well as the building fabric's capacity to stabilise the internal environment.
The two office buildings were to be entirely naturally ventilated without mechanical assistance and consume only 200 kWh/m2 of mains energy a year, 20-50% of that of a conventional air-conditioned office. Another aim was that temperatures should not exceed 28ºC for more than 60 hours a year. Similar environmental design targets were set for the residential block.
However, the designers had to contend with a high-density nine-storey development tightly bound in on three sides by other buildings of similar bulk.
Low-energy strategies had a major impact on four primary aspects of the building design, from overall massing to the detailed design of facades and internal fitting-out. The differing requirements for office and residential blocks led to different design solutions within similar overall concepts.
1] U-shaped courtyard to catch the sun
The general configuration of the three buildings follows that of traditional Berlin city-centre blocks, with a doughnut arrangement of nine storeys of accommodation around a central courtyard. However, gaps in the south-east corners of the doughnuts have been gouged out to admit additional sunlight, daylight and ventilation to the courtyards, as well as providing views out in the same direction to a park.
For the residential block, additional modelling was required to admit sunlight to all the flats. Setting a model of the block on a heliodon, wedge-shaped slices were carved out of the basic doughnut shape in both plan and section to admit low winter sunlight into the courtyard.
2] Naturally ventilated atrium
The two office buildings revolve around atria that are enclosed yet have full natural ventilation. As well as supplying fresh air to the surrounding offices, each atrium serves as a thermal buffer zone, reducing the building's heat loss and creating a well-tempered entrance hall.
To feed fresh air through the atrium at a rate adequate to ventilate the surrounding offices, extensive ducting amounting to 60 m2 in cross-sectional area had to be installed through the building at the atrium floor level. Exhaust vents of equivalent area also had to be installed around the edge of the glass roof to the atrium. The difference in height between the inlets and extracts induces a natural chimney effect sucking fresh air through the atrium.
In winter, the fresh air entering the atrium is preheated. Even so, the atrium temperature could drop to a minimum of 12ºC, and this led to the construction of a heated glass enclosure around the reception desk.
3] High-performance building envelope
The eight facades of the two office buildings facing into the atria and out to the surrounding streets were divided into bays 2.7 m wide and one-third of a storey in height, each of which was "fine-tuned" in response to the amount of sunlight, daylight and hot or cold air they received. The result in the office blocks was a kit of about 15 parts that were varied to suit the precise microclimate next to each facade subsection.
The kit of parts comprises clear-glazed transparent panels with different U-values, translucent panels incorporating glass prismatic louvres, and opaque panels (of glass, facing the atrium, and of terracotta, facing the street). The glazed panels comprise a fixed clear-glazed window in the middle with top-hung opening vents above and below serving as fresh-air inlets and outlets to the offices behind. In addition, each section of facade receiving direct sunlight is fitted with an external roller blind, and all windows are fitted with internal venetian blinds. The opening vents and external blinds are automatically and individually controlled by the building management system, which can be overriden manually.
A similar fine-tuning exercise was carried out for the facades of the residential block, but not using a panellised kit of parts. Instead, the size of window openings, the provision of conservatories and external blinds were varied according to the amount of daylight and sunlight received.
4] 100% naturally ventilated interiors
Optimum air-circulation patterns through the offices are induced by the careful positioning of lower and upper vents in the external/atrium walls, as cross ventilation is blocked by the internal partitions in the cellular office layout. As well as providing fresh air, the natural ventilation system provides summer cooling and overnight cooling of the building fabric. To assist night-time cooling, the fresh air circulates upwards through slatted suspended ceilings and along the undersides of heat-retaining concrete floors.
In addition, the option of manual override of vents and internal and external blinds gives building occupants control over their individual environments.
In practice, however, the occupant, DaimlerChrysler's subsidiary, Mercedes-Benz, has opted to install chilled ceilings to provide extra cooling. Unfortunately, this means that the extensive environmental design research cannot be properly tested.
Nice design, shame about quality control
To Laurie Abbott, director of Richard Rogers Partnership, working on the three buildings at Potsdamer Platz has been a trying experience. "The site was incredibly restricted, and the rigidity of town planning constraints caused all sorts of aggro." But for him, the most frustrating aspect of the job was that the client, DaimlerChrysler, dispensed with the architect's services when it came to contract administration and site supervision.
DaimlerChrysler opted to manage the project and the construction itself, letting major packages to a series of trade contractors. Friedrich Kittelberger, DaimlerChrysler's in-house project manager, explains: "It would have been too expensive to appoint a general contractor. And by splitting the project up into several packages, we were able to build quickly."
Within only five years, 15 out of 19 major buildings containing offices, housing, cinemas and retail, all designed by an international line-up of prominent architects, have been completed within a constricted, high-density site at Potsdamer Platz.
But rapid construction came at a price. "The quality of work everywhere was appalling," says Abbott. "The building tolerances were wildly outside DIN [German national standards] limits, the concrete work was dreadful, and the windows incorrectly fitted. We used to visit the site regularly at first, but we had no leverage on the contractors through control of payments or other means, so we gave up visiting."
Kittelberger admits that rapid construction using far-flung architects can "sometimes lead to mistakes". In addition, clearing up claims and final accounts will be "a headache", taking a year or longer from practical completion. The fact that the original facade contractor for the office blocks went out of business added to his problems.
Looking to the future, Kittelberger accepts that the complex hi-tec building will be difficult to clean and maintain, not to mention any latent defects that might arise out of poor workmanship. Added to that, Rogers' delight in exhibiting delicate moving parts outside the building envelope, particularly the multiplicity of automatic windows and intricate fabric blinds, could cause problems in the future.
Highlights of the £3bn Potsdamer Platz masterplan
Potsdamer Platz is one of the largest commercial construction sites in Europe. Some £3bn of construction work is being pumped in to reinstate the commercial heart of the German capital, which was bombed flat during the war and then allowed to lie fallow as no-man's land between East and West Berlin until German unification in 1990. A masterplan recreating the former radiating street pattern was drawn up by Hilmer & Sattler.
DaimlerChrysler scooped the lion's share of the Potsdamer Platz, even before the wall came down in 1989. To date, construction has been completed on 15 out of 19 major buildings to a masterplan by Renzo Piano Workshop. Known as Debis city, it comprises 550 000 m2 offices, housing and retail, a 350-room hotel and a complex of cinemas and theatres.
Sony, the Japanese electronics giant, is developer for the second major chunk of Potsdamer Platz in association with contractors Tishman Speyer of the USA and Kajima of Japan. The £500m, 132 500 m2 development is designed entirely by Murphy/Jahn of Chicago and is due for completion next year. It will include offices, housing and a film centre.
Other components of Potsdamer Platz include a major rail and underground station, a combined heat and power plant, a telecommunications centre, a public park and a clutch of minor commercial developments.
Downloads
How to design state-of-the-art green buildings in four not so easy steps (Fig 1)
Other, Size 0 kbHow to design state-of-the-art green buildings in four not so easy steps (Fig 2)
Other, Size 0 kbHow to design state-of-the-art green buildings in four not so easy steps (Fig 3)
Other, Size 0 kbHow to design state-of-the-art green buildings in four not so easy steps (Fig 4)
Other, Size 0 kbResidential block: elevation
Other, Size 0 kbResidential block: second/third-floor plan
Other, Size 0 kbOffice block: section
Other, Size 0 kbOffice block: second floor plan
Other, Size 0 kb
Credits
architect Richard Rogers Partnership structural engineers Ove Arup & Partners, Weiske & Partner, Knebel & Schumacher services engineer RP+K Sozietät (joint venture with Roger Preston & Partners) facade engineer Institut für Fassadentechnik IFFT cost consultants Davis Langdon & Everest, Drees & Sommer landscape architect Kruger & Mohler















