Design watchdog Cabe has given Building Schools for the Future designs a bit of a thrashing to date. But what of the latest crop? Martin Spring takes an exclusive look at six newly completed BSF schools – all but two designed by different architects
Other Building Schools for the future designs may have been criticised by Cabe, but this September’s crop of schools cannot easily be dismissed as poor cousins of the much vaunted city academies.
In all six buildings, the architects have been imaginative and refreshing in their use of internal and external space in ways that should encourage the Department for Children, Schools and Families’ (DCSF) prime objective of “transformational education”. The big challenge here is that, unlike some of the lavishly funded earlier academies, budgets for BSF schools are pared down to an average unit cost of just £1,730/m2 (excluding external works, abnormal features, professional fees and VAT). Evidence of dumbing down can be found in some of the detailing, and materials value engineered by contractors in design-and-build or PFI contracts.
Pudsey Grangefield School in Leeds scores highly for the rich variety of personalised learning spaces threaded through the school. But the vast daylit atrium of Buttershaw School in neighbouring Bradford is let down by a flat, featureless ceiling and heavy-handed balustrading to the balconies.
The other curbs on architectural quality in BSF schools are the low status of design in the bidding process and poor consultation between architects, school teachers and students at the design and bidding stage. That said, these six projects score less badly on consultation than might be expected, often at the insistence of the architects. At the Titus Salt School in Bradford, shown above, Dean Murphy of Anshen + Allen says: “We felt there was not enough consultation at first. So we asked for, and were given, another 16 meetings.”
All the following schools have been assessed by Building according to the 10 design criteria specially devised by Cabe’s school design review panel. In terms of sustainability, all schools must meet the “very good” level of the BRE’s energy assessment method, as is required by the DCFS. In every case, the buildings rely on natural ventilation, except for science labs, assembly halls and libraries with intensive usage of information and communication technology (ICT). Most of the buildings can be adapted over time by relocating internal stud partitions.
So what design trends are emerging in school buildings? For a start, do not expect much change in the classrooms themselves, which retain their traditional rectangular shape and 60m2 size. Outside the classrooms, spacious atriums that serve as hubs for socialising, dining and access are becoming standard features. So too are wide, daylit internal streets that link all school facilities, with no dark corners to encourage bullying.
But the really vital new element in transformational learning is electronic personalised education through rapidly evolving ICT. All six schools illustrated are fitted with cabled and wireless ICT networks. That said, the facilities for accessing these networks vary quite a bit. In some schools, ICT is concentrated in a central library, in an ICT room equipped with rows of PCs. In other schools, corridors between classrooms have been widened into breakout spaces where students can plug in their laptops. And a few schools are threaded through with small informal clusters of ICT-ready hot-desks.
Mairi Johnson, Partnerships for Schools’ design director (see box, right), favours all three options together. “Learning is becoming very mobile. So a school needs to provide some big spaces, some medium-sized and some individual places.” But, she insists, harking back to her experience at Cabe, “they must all be pleasant places”.
Partnerships for Schools gets a design director
There are distinct signs that design is moving up the agenda at the Building Schools for the Future’s implementation organisation, Partnerships for Schools (PfS).
For a couple of years, PfS has deployed three managers to safeguard design in BSF projects.
For a year and a half, it has served as the client organisation to Cabe’s school design review panel on behalf of the Department of Children, Families and Schools. As of next month, it is setting a new high-level post of design director.
So who better to fill PfS’s new design director post than the enabling manager for Cabe’s school design review panel, Mairi Johnson?
Johnson is well aware of the distance travelled by her new employer. “Partnerships for Schools was set up in 2004 as a delivery organisation – making things happen is in its DNA,” she says. “Its tender documentation for bidding contractors was all about delivering on time and to budget.
But design is now up at a high level. Chief executive Tim Byles is committed to quality design, and not just as an add-on but as something essential for educational transformation.”
In her job of carrying out Byles’ commitment to design quality, Johnson faces several challenges ahead of her. One of the first will be to implement the “design threshold” concept mooted by Cabe and adopted by PfS to start in November. The idea here is that school schemes that fail to pass Cabe’s design threshold, or minimum standard, will be barred from progressing through the BSF bidding process.
The dilemma faced by PfS is that, if a failed scheme were to be dropped, then the competitive bidding process between two teams, as is required under BSF’s recently revised procurement rules, falls apart. Johnson suggests that the way out might be to extend the design and bid period. But this poses another quandary for PfS, which is required to deliver school buildings to a set timetable. “It’s brave for PfS to take on the design threshold,” she says.
Beyond that, a longer-term challenge looms. This is to maintain design standards for the later projects in the BSF framework after the bidding process is over and, as Johnson puts it, “once the chewing gum loses its flavour”.
She continues: “BSF has its key performance indicators to build schools ever faster and cheaper on Egan principles, and that’s a scary proposal.” Instead of key performance indicators, maintaining design standards will have to rely only on Cabe’s design threshold and the threat of failure, she argues.
But how to define hard standards in something as nebulous as architectural design? “Most people think design standards are subjective. But Cabe thinks they can be objective and that it makes robust judgements. I have every confidence in their methodology.”
In other words, Johnson is carrying Cabe’s architectural design DNA into the BSF delivery stronghold of Partnerships for Schools. Bidding contractors had better watch out.
Titus Salt School

Location: Bradford
Architect: Anshen + Allen
BSF contractors: Amey, Costain, Ferrovial Agroman, Sun Microsystems, HSBC Infrastructure
Cost/m2: £1,417
Cost/pupil: £14,474
Titus Salt School in Bradford presents a confident image of thrusting white-rendered wings, and features a dramatic atrium that serves as its social hub. Classroom wings all revolve around attractive, ICT-equipped break-out spaces.
Identity & context: Viewed from Saltaire Village World Heritage Site, three three-storey wings with white-rendered facades and crisp rooflines stand out sharply against the backdrop of a densely wooded hill.
Site plan: The slope of the site is dramatically exploited by a triangular entrance atrium, in which a free-standing staircase zig-zags up to internal streets on the two upper floors.
School grounds: The six wings embrace a large, hard playground at the front and two intimate study courtyards furnished with planters at the rear.

Organisation: The six wings branch off either side of a double-decker internal street, with the community facilities in the two wings flanking the main entrance.
Buildings: All six wings share a white-rendered finish, curved corners and a base of coursed local sandstone.
Interiors: Each teaching wing revolves around a triangular, top-lit break-out space on two floors that is ICT-equipped for personalised learning.
Feeling safe: To encourage social interaction, the entrance atrium features a cafe below and is overlooked by two streets and the LRC above. The two streets are straight, 5m wide and top-lit through skylights.
Pudsey Grangefield High School

Location: Leeds
Architect: Faulknerbrowns (part of Mentor partnership)
BSF Contractor: Interserve
Cost/m2: £20,28
Cost/pupil: £18,777
Pudsey Grangefield rejoices in an engaging palette of materials and a double-decker internal street that is spacious, light and airy. Abundant hot-desks for personalised ICT learning permeate the building and bring education right up to date.
Identity & context: An eye-catching mix of polished green blockwork (around the main entrance), natural cedar boarding and buff-coloured brickwork clad the school. Internally, a bright and airy double-decker street runs the length of the entrance wing, where it overlooks the dining and social hall and ends in a magnificent vista of surrounding hills.

Site plan & school grounds: Two new rectangular blocks at right angles skirt the obsolete school building, which will be demolished to create playgrounds.
Organisation: The double-decker street overlooks the dining and social hall on one side and is flanked by sports, music, art and technology facilities open to the community on the other. The rear wing contains all general teaching areas.
Buildings: The two wings step down two storeys along the natural slope of the site yet maintain a constant eaves height.
Interiors: The school’s computing specialism is amply served by large, open-plan, informal ICT areas that take up the centre of the rear teaching wing on all three floors. Each faculty also has a “show and teach” room with tiers of hard benches, where students can present their own work.
Feeling safe: The double-decker internal street is bright and spacious.
Long life, loose fit: Pairs of classrooms can be instantly combined by folding away movable partitions.

Buttershaw Business & Enterprise College

Location: Bradford
Architect: Architecture PLB
BSF contractors: Amey, Costain, Ferrovial Agroman, Sun Microsystems, HSBC Infrastructure
Cost/m2: £1,620 (approximately)
Cost/pupil: £14,600 (approximately)
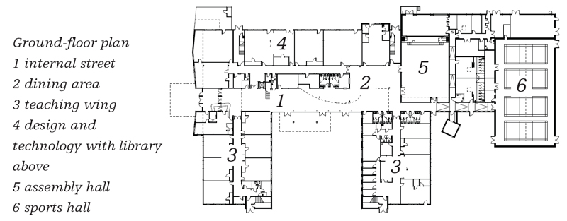
Behind its landmark green prow, Buttershaw School is boosted by a vast daylit atrium-cum-dining hall and an internal street on three levels. Opportunities for ICT-connected personalised learning are restricted to the science wing and compact library.
Identity & context: The school is fronted by a prominent curved “beacon” clad in green patinated copper and framing a huge picture window. Internally it revolves around a resplendent daylit atrium-cum-dining hall three storeys high.
Site plan: Five wings are shoe-horned into a tight site next to the existing school, which will be demolished.
School grounds: Two paved, wedge-shaped courtyards are embraced by three wings and enlivened by planters.
Organisation: A triple-decker central street links the large facilities open to the community along one side and three classroom wings that project out to the other.
Buildings: Beyond the green prow, the four wings are either rectangular or nearly rectangular and clad in white render above a base of charcoal-grey blockwork.
Interiors: Wide central corridors to the science wing incorporate ICT-equipped break-out spaces for personalised learning. The atrium and internal streets are spiced up by a patchwork of primary colours in the window walls but let down by a featureless flat ceiling and crude balustrading.
Feeling safe: The central atrium-cum-dining hall is vast, airy and flooded in daylight. The three levels of central street are also daylit and terminate at both ends in sweeping vistas of surrounding hills.

Frederick Bremer School

Location: Waltham Forest, north-east London
Architect: Penoyre & Prasad
BSF contractor: Bouygues
Cost/m2: £2,062
Cost/pupil: £22,222
Despite its severe exterior, Bremer School has a reassuring, daylit interior, with a two-storey ICT-served library given due prominence by a large bow window thrusting into the internal street.
Identity & context: The concrete-walled building is industrial in appearance, although it is enlivened by three-storey-high, clear-glazed shop windows to both main entrances. Inside, the three-storey, daylit street and dominant bow-fronted library are more upbeat.
Site plan: The three wings embrace a large sun-trap courtyard. The sports hall acts as a noise buffer to the railway line at the rear.

School grounds: In a tight urban site, the grounds are paved and dotted with trees, yet a variety of areas cater for both sedentary and active play.
Organisation: In a clear and basic layout, two three-storey classroom wings are linked by an internal street. One side of the street is lined by the library, assembly hall and ICT rooms.
Buildings: Basic, rectilinear, three-storey forms, with the central, bow-fronted library as the prominent exception.
Interiors: The spacious street serves well for socialising and dining as well as access. ICT is concentrated in the large double-decker library and adjoining classrooms.
Resources: Exposed concrete walls, floors and roofs all act as a heat sink. Chimneys assist natural ventilation.
Feeling safe: In response to what Phyllida Mills, director at Penoyre & Prasad, calls “a lot of troubled kids”, internal and external spaces are all open to view, daylit and reassuring. Pairs of unisex toilet cubicles are distributed through the building and served by wash-hand-basins visible from main corridors.
Long-life, loose-fit: The assembly hall’s stage can be instantly converted to a music room by sliding out sound-proof movable partitions.

Kelmscott School refurbishment

Location: Waltham Forest, north-east London
Architect: Architecture PLB
BSF contractor: Bouygues
Cost/m2: £1,507
Cost/pupil: £12,222
Kelmscott School is the exception to the BSF rule that refurbishments are inferiors to new-build schools. What was a dowdy brown crinkly-tin shed has been thoroughly and imaginatively refreshed by adding a stylish new wing and glazed external canopies. Inside, classrooms have been reconfigured and all three wings bound together by an attractive new street.
Identity & context: A new wing with a stylish main entrance and glazed canopies on raking white steel struts transform a crinkly-tin shed of a school. “For the first time, locals know where the school is,” says Architecture PLB director Rachel Shaw.
Site plan: The new wing runs along the site boundary, leaving the existing park-like playground undisturbed.
School grounds: The extensive playground has been extended and enriched by slotting in an open amphitheatre. Hard play areas and staff carparking are shared with the adjoining council leisure centre.

Organisation: A new internal street stitches the whole school together. It progresses through the new wing, cuts through the sixties building and then points towards the nineties building at the rear, all in a straight line. The assembly hall and other large new facilities are housed in the wing.
Buildings: Identical external glazed canopies bind the new wing with the sixties building. Pale blue decorations perform the same trick internally.
Interiors: The sixties wing has been 70% remodelled internally to provide better sized classrooms. The street contains a sequence of three attractive dining areas. The external canopies add circulation routes to the cramped internal corridors of the sixties building.
Resources: Opening clerestory windows have been added to ventilate science labs in the sixties building.
Feeling safe: A welcoming entrance leads into a daylit internal street with views out to a landscaped playground.

Park Campus Pupil Referral Unit

Location: Lambeth, south London
Architect: Ellis Williams Architects
BSF contractor: Apollo Construction
Cost/m2: £2,707
Cost/pupil: £61,818
A pupil referral unit provides short-term education for children who have been excluded or have behavioural problems. Intended for just 110 pupils but double that number of staff, Park Campus is the first pupil referral unit to be built for a generation and was devised from first principles with headteacher Richard Leonard.
Identity & Context: The school comprises two-storey blocks like its residential neighbours, but with the distinction of curving metal roofs. An undulating ETFE roof canopy runs through the complex and projects out to the street.

Site plan: The four wings of the building are built hard up against the boundaries of the tiny urban site.
School grounds: Three of the wings embrace a small courtyard containing a stone amphitheatre, overlooked by the restaurant.
Organisation: To avoid conflict between three different groups of students and staff, they have been segregated into three separate wings. For the same reason, the main circulation spine is an external concourse sheltered by the ETFE canopy and is a full 7m wide. A sports hall open to the community lines the public pavement.
Buildings: The four wings share a similar external outline and the same materials of metal standing-seam roofing and white-rendered walls above dark-grey engineering brickwork on the ground floor. These are counterpointed by the undulating, translucent ETFE canopy linking them.
Interiors: Classrooms have a high headroom of 3.8m, without ceilings. large windows and bespoke fitted furniture.
Resources: Exposed concrete floor and roof slabs act as a heat sink.
Feeling safe: The wide, open air concourse gives ample space for circulation, and all external spaces are overlooked.

Downloads
Titus Salt School - First floor plan
Other, Size 0 kbPudsey Grangefield High School - Ground floor plan
Other, Size 0 kbButtershaw Business & Enterprise College - First floor plan
Other, Size 0 kbFrederick Bremer School - Ground floor plan
Other, Size 0 kbKelmscott School refurbishment - Ground floor plan
Other, Size 0 kbPark Campus Pupil Referral Unit - Ground floor plan
Other, Size 0 kb


















No comments yet