This college building looks like it breaks all the rules but it was designed to a strict sustainable regime
Designed by Thom Mayne, selfproclaimed bad boy of American architecture, 41 Cooper Square looks at first glance like some giant fissured lump of steel has crashlanded amid the glass towers and brownstones of Manhattan. This vast metallic interloper hangs brooding over the sidewalk. Its main facade is slashed by two deep scars and a sneering lip signals the entrance.
Mayne says his buildings and those of his Los Angeles-based practice Morphosis as indefinable. “If you could describe them, then why would I build them?,” he says. “My work is conflictual, just as heterogeneous cities or societies are. It picks up on the micro and macro, mirroring society, its many complications, dangers and excitement. Every building is informed by the nature of how you discuss these things, how you approach problems and the type of questions that are asked. This is what creates the architecture. Less enlightened, less adventurous people are often scared of that.”
This architectural rebel also has a green streak, however. His projects, while being in-your-face, follow a strict sustainable regime that almost always includes a highly designed envelope. The San Francisco Federal building, for example, uses its shape and orientation, plus a “living skin” that allows the building to breathe, to regulate the internal temperature and air quality.
Similarly the Caltrans District 7 headquarters in Los Angeles has a mechanically operated double skin that moves according to the weather and sun position to shield the interior from excessive heat. There is an equally exciting skin on the 16,258m2, nine-storey educational facility Mayne designed for the Cooper Union for the Advancement of Science and Art in New York City.
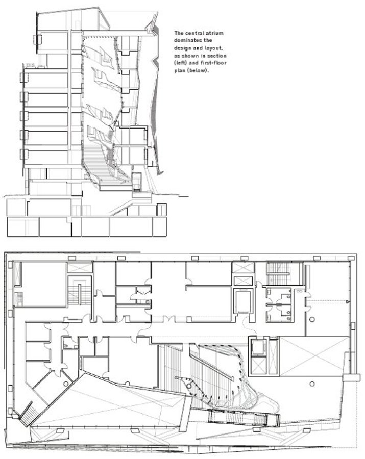
Located on Third Avenue between East 6th and 7th Streets, the full-block structure has reconfigurable classrooms, laboratories, studios and public spaces. It houses the Albert Nerken school of engineering and the faculty of humanities and social sciences, along with student and teaching studios that will serve the school of art and the Irwin S Chanin school of architecture.
SEMI-TRANSPARENT STEEL
Light and shadow pulse through the building via the high-performance double skin, which consists of a semi-transparent layer of 50% perforated stainless steel wrapped around the glazed envelope. The perforated steel prevents more than half of the sunlight from reaching the glazed wall, reducing solar gain significantly. Theinterior surface of the skin is dull, not reflective, to stop any bounce back of solar radiation. Some of the steel skin panels can be opened to increase light to certain spaces. In winter, Mayne says, the skin is “a coat” that protects the building from the worst of the harsh New York weather, creating a semi-temperate zone that reduces energy loss.
REVEALING SCAR
A large scar slashed out of the steel skin on the Third Avenue facade follows the curving profile of an impressive central atrium, revealing the social heart of the building – a vertical “piazza”.
The roof is crowned not in steel but in a garden, an outdoor recreation space which plays a part in the reduction of the “heat island” effect and reduces the flow of stormwater into New York’s combined sewer system. During the summer, when students are on holiday, the stormwater, collected in an upper tank, is used to irrigate the roof garden. When school is in session, overflow into a lower collection tank, totalling some 70,000 gallons a year, is used to flush the toilets.
Internally, the design is aimed at encouraging cross-disciplinary dialogue among the three faculties, which were previously housed in separate buildings. In the vertical piazza, an undulating lattice envelops a 6m-wide stairway, which ascends four storeys from the ground level through the naturally lit central atrium. In fact about 75% of the building is naturally lit, significantly reducing energy requirements and making it a nicer environment for the users.
Mayne’s design demands that people meet and talk. The lifts stop only at the first, fifth and eighth floors, making for increased physical activity and more impromptu meeting opportunities
The grand stair terminates in a glazed double-height student lounge overlooking the city. On the fifth to ninth floors, informal meeting spaces are organised around the central atrium, connected by bridges across the space.
Mayne’s design demands that people meet and talk. The lifts stop only at the first, fifth and eighth floors, making not only for increased physical activity but more impromptu meeting opportunities. Secondary and disabled lifts stop at each floor to comply with access regulations and to help with moving materials and equipment.
HEATING AND COOLING
While students and staff use their legs, the building itself is powered by a cogeneration plant. Natural gas meets all of the electricity needs and the plant uses the heat generated to warm and chill water for the radiant ceiling panels and domestic hot water. Excess energy is sold back to the grid.
Radiant ceiling heating is provided in the 3620m2 of laboratories and 1430m2 of classrooms, while offices have radiant heating and cooling. With the cogeneration plant, the heating/cooling greatly reduces the building’s energy consumption compared with a conventional design.
Several design features provide a high quality of air throughout the building. In addition to the radiant ceiling panels, the laboratories have a variable air volume ventilation system and advanced fume hoods in lab spaces to minimise energy loss. Air change rates throughout the building are at variable frequencies depending upon the use of the space. Low-emission building materials and finishes (paints, adhesives, sealants and so on) have been used and all composite wood products are formaldehyde-free.
There is parking for bicycles and lowemission vehicles in the basement, while more than 80% of construction waste was recycled, as was more than 94% of demolition material from the original building on the site.
It all adds up to a rather impressive new addition to Manhattan’s collection of iconic architecture. Not only will 41 Cooper Square be the first LEED-certified academic laboratory building in New York City, if it gets platinum certification, any that follow will have a lot to live up to.
Mayne himself brushes aside the green plaudits and states that the building “aspires to manifest the character, culture and vibrancy of both the 150-year-old Cooper Union institution and of the city in which it was founded”.
To the locals who pass by, it’s just “freakin’ crazy, man!”
The Sustainability Consultant's Role
The client initially targeted LEED silver certification for the building but through a detailed analysis of design and cost drivers, Davis Langdon created a road map to a platinum rating.
“We provided workshop facilitation, managed the LEED certification process, conducted design reviews and provided technical design and construction administration support,” says Penny Knops, associate at Davis Langdon.
“Our job is not to design but our sustainability staff are almost all trained architects or engineers. We help with the bigger picture, setting out options to reach certification goals, reviewing the design andspecifications, and developing strategies to push for the highest realistic sustainable design.”
Davis Langdon set up its American sustainability practice more than six years ago in Santa Monica, California.
Knops says the firm realised while working on cost consulting that sustainability was having an ever greater impact, and so it made sense to combine cost and sustainability consulting.
At 41 Cooper Square, Davis Langdon was able to demonstrate how to incorporate initiatives to raise the level of sustainability to platinum and meet the goals within an acceptable budget.
For example, as with any urban project that involves the demolition of one building to construct another, there was an argument that keeping the existing building was the most sustainable option.
“From an historical point of view, the building was not important enough to be preserved,” says Knops, “and it was not new enough or big enough for a refurbishment to meet the environmental brief set by the client. We showed that the most environmentally economic solution was demolition and rebuild.”
There were provisos, though, and the construction team recycled 94.21% of the old building, calculated by weight.“The design and construction teams’ contractual target of LEED silver was not a task in ticking items on a checklist,” adds Knops. “It was the application of an holistic approach that has enabled the Cooper Union far to exceed its initial sustainability goals.”
Davis Langdon also developed a full carbon model of 41 Cooper Square as well as providing cost management services. The firm will helping to monitor the building’s performance for the first year of occupation.
Services Checklist
Syska Hennessy, in collaboration with IBE Consulting Engineers, developed the MEP infrastructure and the IT, fire and safety, audio visual and security systems.
The building is seeking a LEED platinum rating. It is the first in New York City to have radiant cooling ceiling panels. Other sustainable features include radiant floor heating and cooling, an airside heat recovery system and VAV systems with integrated controls for demandcontrolled ventilation. It has a green roof and a greywater collection system, which ensures no potable water is used for irrigation and provides water for toilet flushing.
The lighting system and HVAC controls are integrated through the BMS, with occupancy sensors which permit the systems to turn off gradually when no presence is detected or when scheduled to do so.
The radiant ceiling heating and cooling is installed in conjunction with the VAV system, both controlled by a common zone thermostat. The air system supplies minimum ventilation rates at all times. On a call for cooling, the radiant panel control valve modulates first, allowing the radiant system toemploy its full capacity. If more cooling is required, the VAV system supplies the additional capacity.
Since water can absorb four times more heat than air, the volume of conditioned air has been reduced by 35% in spaces that use radiant ceiling (classrooms and offices). This decrease in air quantities allowed for smaller supply fans, resulting in reduced energy consumption.
Air-handling units supply 100% outside air into classrooms and offices while sensors monitor CO2 levels in densely occupied spaces. The air is returned via corridors, through the atrium, to the rooftop air-handling units serving laboratory spaces, providing energy recovery. Radiant cooling is not used in laboratory spaces because large volumes of air are circulated to maintain the required air changes per hour. When CO2 levels are exceeded in non-laboratory spaces, more fresh air is introduced. When threshold levels drop, supply air is cut, thereby conserving energy.
The windows remain closed, keeping out noise and pollutants. These non-opening windows, condensation sensors on exposed piping and fine-tuned controls ensure that panel surface temperature is always higher than space dew point temperature to avoid condensation.
Client The Cooper Union for the Advancement of Science and Art
Architect Morphosis
Associate architect Gruzen Samton
Mechanical concepts IBE
Engineer of record Syska Hennessy Group
Lighting designer Horton Lees Brogden Lighting Design
Fire engineer Arup Fire
Vertical transportation Van Deusen & Associates
Sustainable design/LEED Davis Langdon
Environmental design peer reviewer Atelier Ten
Co-generation Source One
Commissioning Synergy Engineering
Cost Davis Langdon
Downloads
Drawings
Other, Size 0 kb
Source
Building Sustainable Design



















No comments yet