Plans for 25 Wellington Square would see a 1970s graduate accommodation block demolished and replaced with new academic
Stanton Williams has submitted plans to redevelop a 1970s building in Oxford designed by renowned International Style architect Leslie Martin.
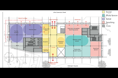
The scheme for Oxford University Development (OUD) will replace the existing graduate accommodation building at 25 Wellington Square with academic facilities.
OUD, a joint venture between the University of Oxford and Legal & General, said the new building will make ”much better use of an important city centre site” by providing modern, effective university space with improved street frontages and upgraded public realm.
Construction of the scheme is expected to begin next year if the application is approved by the city council.
The project includes the refurbishment of a Victorian terrace on the western side of Wellington Square, which currently provides academic space and residential accomodation for the Department of Continuing Education.
The scheme has incorporated passivhaus principles while the developer said it had opted for a refurbishment of Western Square for the second phase of the project to save embodied carbon.
This second phase will contain 100 graduate rooms to replace the accommodation at 25 Wellington Square.

OUD development director Clare Hebbes said: “Our aim is to create a place that supports the wider community, contributes to the local economy, and provides world-class facilities for the university and its students.”
The existing building at 25 Wellington Square was designed by Sir Leslie Martin and completed in 1974. It formed part of a wider masterplan to redevelop the whole of Wellington Square, a scheme that was never fully realised. It has been described by the university as no longer meeting accessibility or fire regulations.
Martin (1908-2000) was a leading figure of postwar British modernism, leading the design of the Royal Festival Hall. Other significant works in Oxford includeg the St Cross Building and the Tinbergen Building. He was also an influential educator, shaping architectural thought during his tenure as head of the University of Cambridge’s architecture department.
Stanton Williams is working with Skelly & Couch as M&E Engineers, Webb Yates as structural engineers and TT Alinea as cost consultants.






















No comments yet